230

Office building to rent

Located in the heart of Winnersh Triangle, 230 is a self-contained, two-storey hybrid building. Suitable for office, high-tech or laboratory use, this building is fully flexible and available immediately.

Building specifications

Delivering 24,694 sq ft of hybrid space, Building 230 offers exceptional versatility in the heart of Winnersh Triangle. This mixed-use building offers exceptional flexibility for office, laboratory, or high-tech use. Its double-height reception, generous floor-to-ceiling heights, and adaptable open layouts create an impressive industrial space designed for ambitious science and tech-focused businesses.

A blue double-headed vertical arrow is shown centred on a square, with a dotted horizontal line crossing through the middle.
Double height reception
A rectangle divided in half horizontally with a blue double-headed vertical arrow in the lower section, indicating height or vertical distance.
Ground floor slab to slab
4.64m
A blue vertical double arrow inside a rectangle, positioned above a horizontal line dividing the image in two.
First floor to ceiling 2.65m
Simple icon of an LED with two leads and blue lines indicating light emission.
LED lighting
A simple black and blue line drawing of a three-blade fan or propeller enclosed in a circle.
New VRF heating and cooling
system
Black and white timer icon with blue wireless signal lines above it, suggesting a connection or synchronisation feature.
Smart metering
Four outlined stars are shown; the top right star is highlighted in blue, whilst the other three are in black.
BREEAm in use ‘Very Good’
2024 target
Two arrow-shaped labels: the top one outlined in black with the letter A, and the bottom one outlined in blue with the letter B.
EPC ‘B’
A simple line drawing of a rectangular building with a door, window, and two blue lines outlining the front and side walls.
Self-contained building
Simple line drawing of a car viewed from the front, showing headlamps, windscreen, and grille.
Generous parking ratio of 1:195
sq ft (125 spaces)
Simple icon of a showerhead with blue water streams falling downwards, indicating a shower or water flow.
Shower facilities
Simple lift icon showing a person standing inside with two arrows pointing up and down on either side of the lift doors.
Refurbished passenger lift

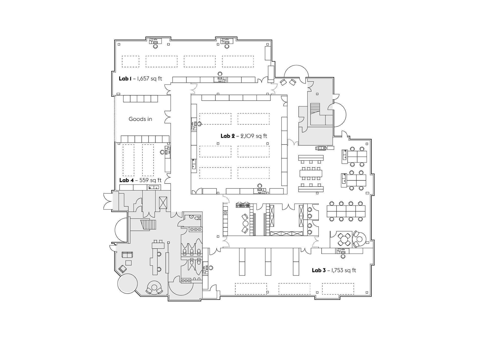
Floorplan

Accommodation schedule

Area sq ft sq m
First Floor 12,401 1,152
Ground Floor 11,213 1,42
Reception 1,080 100
TOTAL 24,694 2,294
Ground Floor

Fitouts

Office options

On the park

A blue lightning bolt inside a black circular arrow, representing energy or power cycle.
100% use of renewable electricity in managed areas
A simple globe icon with black longitude and latitude lines and two blue curved lines representing the Earth's axial tilt.
ISO 14001 accredited (Environmental Management System)
A circular arrangement of black outlined rectangles with four rectangles highlighted in blue, evenly spaced around the circle.
GRESB 5-star ranking by 2025
Simple line drawing of a bed with two blue pillows and a white duvet.
Three hotels within 3 minutes
A cluster of six black-outlined hexagons with one outlined in blue on the upper right.
Wildlife enhancement programme bat and bird boxes, beehives & hedgehog houses
Simple line drawing of a potted succulent plant with five oval leaves outlined in blue.
Horticultural & biodiversity workshops
Line drawing of a car with an electric plug symbol on the left, representing an electric vehicle or car charging.
Three EV charging points
A simple line drawing of a central blue circle surrounded by four black circles connected in a ring.
Net zero carbon by 20250
Simple illustration of a solar panel with nine blue cells arranged in a 3x3 grid, mounted on a stand.
Rooftop solar PV roll-out programme
A simple drawing of a bicycle parked next to a blue bike rack.
Secure cycle parking for active commuters
Simple line drawing of two trees on separate hills, one tree larger and closer, the other smaller and farther away, on a light grey background.
Continuous landscape upgrades and improvements
A black triangle outline with three blue arrows forming a circular motion around its sides, symbolising recycling or a continuous process.
Park-wide waste policy and recycling facilities

Be a part of Winnersh Triangle

We’re here to help your business find the right space to call home, now and for the future.

Or get in touch

Why consider Winnersh Triangle for Commercial Property?

Winnersh Triangle is ideally positioned in the heart of the Thames Valley, just two minutes from Junction 10 of the M4 and within easy walking distance of Winnersh Triangle train station, which connects directly to Reading and London. It also benefits from Park and Ride services and excellent links to Heathrow and Gatwick airports, making it a highly accessible location for both staff and visitors.

This well-connected business destination combines modern transport convenience with a thriving local environment, offering companies an exclusive address at the centre of one of the UK’s most dynamic regions.